AutoCAD Operator
CHARLEMAGNE
TERRENAL
A highly motivated and detail-oriented CAD Operator with extensive experience in the IT field.
Featured Projects
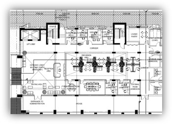
Project : Rochester Institute of Technology | DSO (RIT Dubai)
Scope: Supply and installation of furniture
Objective: Re-create the existing interior design of office spaces through 3D Modeling Software to produce rendered images to match the proposed furniture in the surroundings.
Process:
- Created detailed floor plans for various spaces including discussion areas, conference rooms, and staff offices
- Developed multiple furniture layout options (shown as Options 1-4 in renderings)
- Produced photorealistic renderings using 3Ds Max and V-ray
- Visualized different furniture configurations for client selection
Technical Details:
- Floor plan creation in AutoCAD
- 3D modeling of spaces with accurate architectural elements
- Furniture placement with ergonomic considerations
- Lighting simulation for realistic visualization
- Multiple rendering views to showcase different perspectives
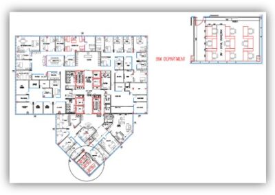
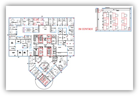
Project : Sharjah Media City
Scope: Supply and installation of furniture
Objective: Re-create the existing interior design of office spaces through 3D Modeling Software to produce rendered images to match the proposed furniture in the surroundings.
Process:
- Designed modular workstation layouts for open-plan office environments
- Created multiple color options for workspace partitions (green, red, blue, and gray variants)
- Developed technical floor plans showing workstation placement
- Produced photorealistic renderings to visualize the final result
Technical Details:
- Detailed workstation specifications with dimensions
- Color sample matching for accurate material representation
- Realistic lighting conditions to showcase actual appearance
- Multiple viewpoints to present different perspectives
Project : Dubai Police
Scope: Supply and installation of furniture + wallpapers
Objective: Re-create the existing interior design of office spaces through 3D Modeling Software to produce rendered images to match the proposed furniture in the surroundings.
Process:
- Created detailed floor plans with accurate dimensions and furniture placement
- Developed 3D models of the executive office environment
- Produced photorealistic renderings showing furniture and wallpaper applications
- Presented multiple viewing angles to showcase the entire space
Technical Details:
- Accurate measurements and space planning
- Realistic material application for furniture and wallpapers
- Lighting simulation to showcase ambient environment
- Integration of branding elements as required
Project : Executive Office
Scope: Supply and installation of furniture
Objective: Re-create the existing interior design of office spaces through 3D Modeling Software to produce rendered images to match the proposed furniture in the surroundings.
Process:
- Developed detailed floor plans with precise measurements
- Created 3D models of the executive office environment
- Produced multiple furniture layout options (Option-1 and Option-2)
- Rendered photorealistic visualizations from different angles
Technical Details:
- Accurate space planning with furniture placements
- Material specification and visualization
- Lighting simulation for realistic environmental representation
- Multiple views to showcase different aspects of the design
Project : Customized Workstation
Scope: Supply and installation of furniture
Objective: Re-create the existing interior design of office spaces through 3D Modeling Software to produce rendered images to match the proposed furniture in the surroundings.
Process:
- Created detailed technical drawings with multiple views (top, front, left, right)
- Developed precise specifications with measurements
- Produced 3D models of workstation configurations
- Rendered photorealistic visualizations from multiple angles
Technical Details:
- Precise measurements and dimensions for manufacturing
- Multiple view drawings for comprehensive understanding
- Detailed component specification
- Various configuration options to demonstrate adaptability
Services & Expertise
Services List
- Space Planning & Layout Design Creation of efficient and functional floor plans for commercial and institutional spaces.
- 3D Modeling & CAD Design Detailed 2D/3D AutoCAD drawings and comprehensive design documentation.
- Photorealistic Rendering High-quality visualizations that allow clients to see designs before implementation.
- Furniture Layout & Specification Comprehensive furniture planning with multiple design options for client selection.
- Interior Visualization Realistic representation of spaces including materials, lighting, and finishes.
- Technical Documentation Precise technical drawings and specifications for construction and installation.
About Me
I produce rendered images for realistic visualization and edit and compile furniture images for company catalogues & presentations using photo editing programs like Photoshop, MS Office PowerPoint & other graphical programs.
3Ds Max
Advanced Knowledge in 3Ds Max Modeling and Rendering
Google SketchUp
AutoCAD
Adobe Products
Office
Troubleshooting
Knowledge in Installing, uninstalling and troubleshooting hardware and software for computers
